|
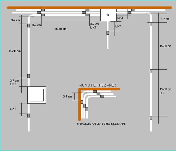
Denne
plansjen viser de prinsippene som du bør følge når du planlegger et
kabelarbeid. Dersom installasjonen skal bli pen, bør anlegget bygges slik at
klammerne danner et symmetrisk mønster. Det handler om å måle ut, og beregne hvor
de enkelte klammerne skal festes i veggen.
|
|
Denne siden kan du skrive ut. |