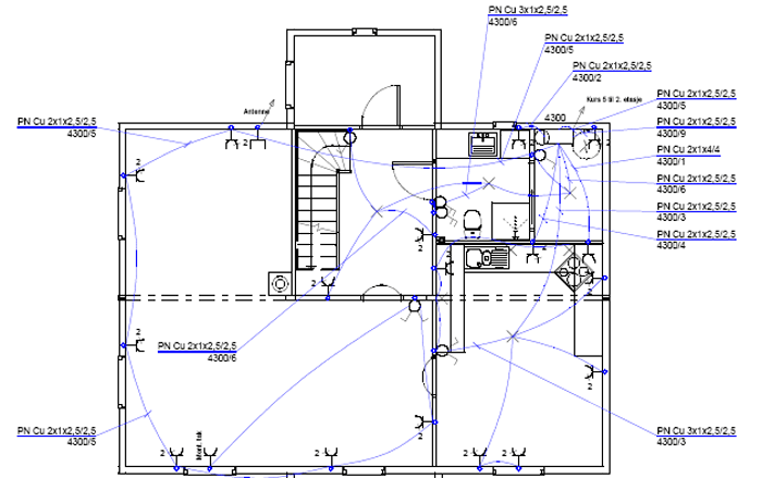
Tegning av symboler og ledningsføring i bolighus.